카닥은 2014년 1월에 판교의 semi-코워킹 사무실의 14평 공간에서 시작되었습니다.
스타트업은 성장하지 않으면 죽은 것이나 다름없기에, 카닥도 매년 2배 가량 성장을 해 왔고, 그에 비례하는 인력의 증가도 매년 있어왔습니다.
카닥-소규모 스타트업을 위한 사무실 인테리어 DIY

3년차까지는 원래 입주했던 사무실을 계속 확장하면서, 부족한 공간문제를 해결해 왔지만, 이제 4년차에 접어들면서, 인큐베이션 사무공간에서 독립하여 카닥 오피스가 필요해 지게 되었습니다.
카닥 오피스 2.0 요구조건
* 위워크 수준 또는 그 이상의 오피스 환경
– wework나 IT대기업 수준의 최신 개방형 근무환경, 서로 방해받지 않는 공간
– 더 많은 공간, 더 좋은 퍼포먼스: 모든 공간에 흡음,차음성능 확보, 모든 공간에 적정 환기수준 확보
* 최대 40명까지 수용가능한 업무공간
– 통상적인 사무실은 근무공간+공용공간 1인당 3~5평 필요. 그러므로 40명 근무공간은 120~200평.
– 현재 20여명인 카닥 근무인원이 40명까지 증가 수용 필요. 계속 잘 성장하면, 최대 3~4년까지 운용될 사무실
* 신규사업 진행을 위한 창고/물류공간 확보
– 창고공간과 사무공간이 같은 공간에 있어야 함 (코워킹사무실이나 스타트업사무실은 불가능)
* 활발하고 즉각적 업무커뮤니케이션을 위한 개방된 사무공간
* 매니저(총무관리인력) 없이 20~40명이 쾌적한 근무환경을 유지할 수 있는 공간과 지원 설비 배치
* 지원인력(리셉션,청소,관리,카페)이 없이도 정상적인 사무환경 유지가 가능해야 함
* 최대한 적은 공사 비용을 투입(임대사무실)- 평당 100만원 목표
그리고, wework 같은, 좋은 오피스환경으로, 그곳에 오피스가 있다는 이유만으로도 좋은 인재를 회사에 합류시킬 수 있으며, 외부 손님 미팅을 불편없이 수용할 수 있는 사무공간


위워크 을지로의 사진. 널찍한 공간에서 직원과 미팅 고객들에게 좋은 퀄리티의 베버리지를 제공하네요. 전담직원 2명 항시 서빙~ 이런 서비스를 제공하기 위한 인건비와 공간 비용을 계산해 보면, 100인 미만 오피스에선 부담이 너무 커 시도조차 하지 못할 서비스입니다. 아웃소싱과 DIY를 최대한 적절히 조합해야만 합니다.
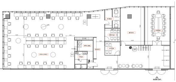
우여곡절 끝에, 새 사무실은 정든 판교오피스를 떠나 서울 문정역근방의 대형 지식산업빌딩의 110평 사무실로 정했고, 임대계약과 동시에 사무실 설계에 돌입합니다.


가로 30m, 세로 10m 의 가로로 긴 사무실 공간입니다.
일주일 내로 인테리어 설계를 마치기 위해 초고속으로 설계를 진행하며, 수십번 배치를 뜯어고칩니다. 그와 동시에 칸칸이 나누어져 있는 사무실 공간의 철거작업을 시작합니다.






수십번의 도면 수정작업을 거쳐 최종 도면을 확정합니다. (물론 시공하면서 몇번 더 수정됩니다)


원래는 벽체만 철거할 예정이었으나, 벽체를 철거하는 과정에서 각 실별 바닥 높이와 천장마감이 다 다른 문제가 발생하여 전체를 다 철거하게 됩니다.
호기롭게 시작한 사무실 인테리어가 점점 커지는 순간. 이미 돌이킬 수 없으니 앞으로 나아갑니다. 스타트업 경영과 비슷합니다~


불과 이주일의 공사기간에 공사를 마무리하기 위해 최선을 다한 시공팀은, 까사미아의 인테리어 사업부에서 맡아 주셨습니다. 카닥의 좀 많이 다른 오피스에 대한 요구사항과 타이트한 예산, 그리고 엄청 짧은 공기를 맞추어 주셨습니다.

이렇게 오피스공사가 한창인 와중에도 같은 건물 지하 창고에선 카닥의 사업 진행을 위한 재고물류작업이 이루어집니다. 사무실은 사무실이고, 사업은 사업!


3년간 정든 판교사무실을 떠나며 기념사진 사무실 이사도 DIY로.. 5톤 탑차만 빌려 모든 작업은 카닥 멤버들이 몸빵~

이사가 끝이 아님~ 비용절감을 위해, 흡음/차음 인테리어 마감 마무리시공도 직접 DIY로 합니다.

자~ 이제 번개 같은 속도로 완성된 카닥의 오피스2.0에 들어가 볼까요~

카닥 오피스의 입구입니다. 밖에서 내부가 훤히~ 들여다 보이는 자동문에 이어서 카닥 멤버들의 출퇴근용 자전거와 창고이동용(200m정도) 킥보드가 파킹되어 있습니다.
다른 일반적인 오피스 입구와 다르게 내부가 오픈되어 있고, 별도의 리셉션 인력이 없이 운용되도록 하였습니다.


입구에서 바로앞은 카닥의 대회의실. 주로 외부 방문자미팅을 위한 공간입니다. 카닥 멤버들끼리의 미팅은 이곳에서 하지 않고, 각자의 데스크가 있는 업무공간에서 합니다.
바닥, 천장, 벽체까지 모두 방음/흡음자재로 마감하여 목소리가 울리지 않고 차분한 회의와 컨퍼런스콜을 할 수 있습니다.


입구 바로 왼쪽엔 주로 택배드롭공간. 오피스 데스크에서 입구까지가 멀어서 택배아저씨가 입구의 도어벨을 누르시면, 데스크공간의 모니터를 보고 리모콘으로 문을 열면 드롭공간에 택배 상자를 놓고 가십니다.


대회의실 옆의 다목적실은 창고,운동기구,사진촬영공간 등으로 활용됩니다.


다목적실 옆의 중회의실. 여기까지가 외부인이 카닥에 오시면 주로 있게 될 공간입니다. 여기서부터 천장 마감이 오픈형으로 바뀌면서 주로 카닥 멤버들의 업무공간이 펼쳐집니다.


카닥 오피스의 가장 중요한 업무공간. 1인당 1600mm의 데스크폭과, 뒤로 넓은 공간을 확보해서 업무 중 언제든지 동료들과 원탁에 모여 회의를 할 수 있도록 하였습니다. 중앙의 원탁공간은 회사에서 가장 넓은 공간이기에, 전체 직원이 이곳에서 모여서 전체회의를 하거나 때로는 회식을 하기도 합니다.


모든 데스크공간은 전후좌우로 최소 1600mm 이상의 이격이 되도록 배치하고 모든 데스크의 정면에는 흡음성을 갖는 스크린 파티션과 벽, 그리고 유리 창문으로부터 600mm이상 이격을 하여 각자가 업무 중 발생시키는 소음의 확산이 오픈 공간에서 최대한 억제되도록 하였습니다. 또한 업무중 가장 오랜 시간 머무르는 공간이므로 답답함이 없도록 최대한의 공간감을 주기 위해 오픈 천장과 통상의 오피스보다 2배쯤 밝은 실내 조도를 확보하였습니다.


카닥 사무실의 모든 가구는 ㈜까사미아의 사무용 가구 브랜드인 우피아에서 협찬하여 주셨습니다.
우피아는 카카오, 네이버 등 유수의 IT기업의 오피스 퍼니쳐를 공급해 왔는데, 카닥과 같은, 스타트업의 새로운 업무환경에 대한 실험적 접근에 대해 적극 지원을 해 주셨습니다.
특히, 우피아에서는 기성 제품 외에도 카닥의 요구조건을 반영하여 여러가지 커스터마이징된 새로운 가구류를 공급해 주셨습니다.
위 사진에서의 사이드 스크린 파티션은 이번에 새로이 제작된 제품으로서, 단순한 스크린 파티션의 역할과 함께, 흡음성을 갖는 타공 된 제품이어서 각 자리에서 발생하는 소음의 확산을 최대한 억제합니다.


위의 스탠딩 폰부스도 우피아에서 카닥을 위해 새로이 제작하여 주신 제품으로, 흡음성을 갖는 타공목재판넬 프레임을 흡음성을 갖는 펠트패브릭으로 감싸 만든 폰부스입니다. 실제로 이 폰부스 안쪽으로 다가가면, 주변의 화이트노이즈가 확 줄어드는 신기한 경험을 할 수 있을만큼 성능이 좋습니다. 전화통화가 빈번한 카닥 오피스에서 전화통화시 자리에서 일어나 몇발자국만 가면 있는 이 폰푸스가 잘 활용되고 있습니다.

벽을 마주보고 배치되는 벽면에는 라인형 타공 흡음보드와 흡음목모보드로 마감하여 목소리가 벽면에 반사되어 확산되는 것을 억제하였습니다. 이것도 DIY시공.




방해받지 않는 전화통화를 거하나, 때로는 혼자 있고 싶을 때 사용되는 3인용 소회의실. 회사에서 가장 인기있는 공간 입니다.


사무공간의 여러 자투리벽면에는 화이트보드필름이 붙어 있어 3~4명이 서서 모여 보드writing을 하며 업무협의를 할 수 있습니다.


방음이 되고 조도를 조절할 수 있는 리클라이너룸과 헤먹룸에서 편하게 전화통화를 하거나 꿀 같은 낮잠을 잘 수도 있습니다. 벙커베드나 침대를 두지 않은 이유는, 베딩을 항상 클린하게 관리할 인력이 없기 때문입니다.

소회의실,휴게실,샤워실,라커룸 같은 재실시 프라이버시가 필요한 공간은 입구에 재실등이 있어 사용중인지 아닌지를 문을 열거나 노크하지 않고 확인할 수 있습니다.


샤워실과 세탁실의 통로에는 락커룸이 있습니다. 운동을 하거나 자전거 출퇴근 직원을 위한 배려입니다.


개별난방과 온수공급이 되는 샤워실. 쾌적한 샤워를 할 수 있도록 타월도 제공. 점심먹고 양치질하는 공간으로도 자주 이용됩니다.


세탁기와 건조기가 있는 세탁실. 샤워타월,손타월,사무실/주방용마른행주를 항시 공급하기 위해 필요한 공간입니다.깨끗한 사무환경을 유지하기 위한 필수설비.
그리고 앞으로, 회사티셔츠도 항시 공급해서 마크 저커버그처럼 카닥맨들은 매일 같은 티셔츠를 바꿔입게 해 줄 설비입니다.

회사에서 매일 가장 붐비는 공간인 오픈키친공간 입니다. 전담관리자 없이 운용될 수 있도록 각종 주방기구들을 선정하고 배치하였습니다.




분리수거함, 오븐레인지, 식기세척기,정수기,개수대,온장고,에스프레소머신,대용량커피머신,얼음디스펜서냉장고,아일랜드테이블을 갖추고 있습니다.
머그컵과 텀블러컵을 공용으로 제공하여 종이컵 사용을 줄이고, 사용한 컵은 매일 식기세척기로 세척살균합니다.
오븐레인지는 피자나 핫도그 같은 냉동간식, 팝콘 등 매일매일 열심히 활용되고요,

카페라떼를 위한 네스프레소머신. 커피빈그라인더와 한번에 2.5리터씩 서빙되는 대용량 커피머신.

최고품질의 커피는 매일 아침,점심때 만들어져 1.9리터와 2.5리터에어팟으로 서빙됩니다. 제공되는 커피맛이 좋아 아무도 건물1층의 스타벅스 커피를 사먹지 않습니다.

쾌적한 사무환경을 위해서는, 보이지 않는 설비가 매우 중요합니다. 국내의 중소사무빌딩 중에는 적정한 강제환기시설이 갖추어 있지 않은 경우가 많습니다.
카닥오피스는 다행히 개별제어 할 수 있는 열교환환기장치가 있어 실내의 모든 공간에 재실시간에 항상 창문을 열지 않고도 적정 환기를 할 수 있습니다.



특히, 회의실같이 좁고 밀폐된 공간이야말로 반드시 적정환기시설을 갖춰야만 합니다. 작은 공간은 환기시설 설치시 목소리가 환기구를 통해 밖으로 새어나가는 문제가 생길 가망성이 크므로, 환기구도 차음형 환기구를 설치하여 프라이버시와 공조성능을 모두 갖출 수 있도록 하였습니다.



쾌적한 사무환경을 위해 여름철 제습은 에어컨으로 하지만 겨울철 가습이 쉽지 않습니다. 카닥 사무실에는 온수 직결형 대용량 가습기를 설치하여 필요할 때 물 보충 없이 적정 가습이 가능합니다.

나무는 소중하니까요~ 죽지 말라고 LED grow light도 달아주었습니다.


최근 카닥 파운더멤버들이 각자 기증해서 마련된 레이싱 시뮬레이터.

마지막으로, 카닥오피스V2의 동영상 투어를 해 보시죠~
이렇게 20~40인 규모의 스타트업 오피스를 완성하였습니다. 이제 우리는 위워크 수준의 쾌적하고 오픈된 사무환경에서 즐거운 회사생활을 하고 있습니다.
위워크보다 더 적은 비용으로요.
안녕하세요 본문 내용에 기재하신 온수 직결형 대용량 가습기 직접 설치하기 힘들까요?
25평 정도되는 오픈형 스튜디오고 천장형 난방기 사용으로인해 습도가 30프로 이하로 낮아 건조합니다
오래된 건물이라 온수는 부엌에 위치한 작은 온수기를 사용하고 있습니다
좋아요좋아요
온수공급량도 2000w급 히터는 되어야 할 듯 하고, 개별설치는 쉽지 않을겁니다.
좋아요좋아요