
목조주택이라도 기초는 콘크리트로 하기에 콘크리트와 목구조가 바닥에서 만나는 지점이 생깁니다. 이를 sill plate라고 하고 한국에서는 토대목이라고 합니다.
콘크리트와 만나는 토대목은 반드시 방부목을 사용해야 합니다.
그 얘기는, 이 위치의 나무가 빗물이 아닌 다른 물이나 수분에 의해 손상될 수 있다는 것을 의미하는 것이죠.

토대목은 왜 손상될까? 물에 오랫동안 젖어 있는 상태가 반복되면 방부목이라도 토대목이 손상되게 되는데요,
두가지이유가 가장 큽니다.
1. 콘크리트에서 지속적으로 공급된 수증기에 의한 손상
2. 콘크리트 표면의 온도가 낮아(콘크리트구조체의 단열성이 낮아서) 결로가 생기는 문제

1,2번 문제를 줄이고자 sill sealer 를 토대목과 콘크리트 사이에 시공하지만, 좀 부족합니다.
그래서 1번 수증기의 유입 가능성은 토대목이 접촉하는 콘크리트 표면을 class-1 방습층을 구성하여 습기를 완전히 차단함으로서 해결되었습니다. (이전 블로그게시물 참조)
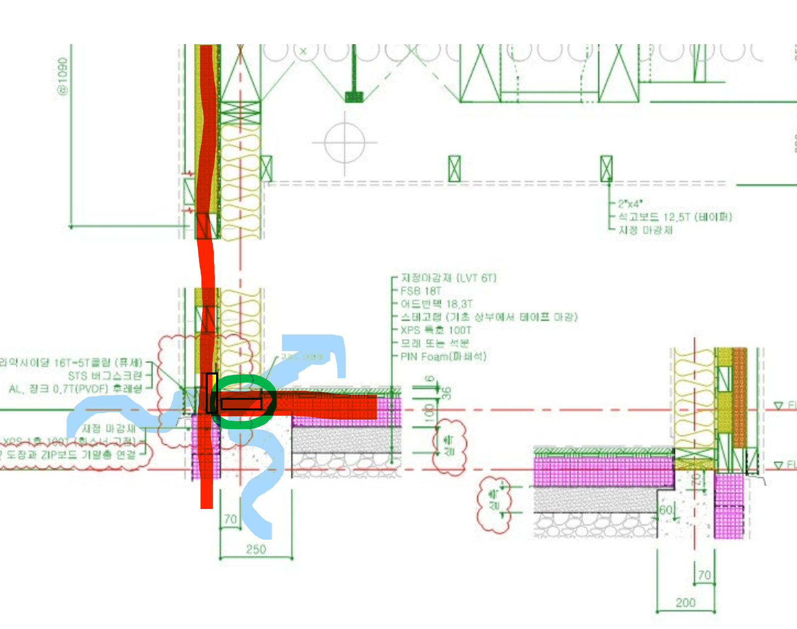
남은 문제는 2번. 결로발생을 막아야 하는데, 결로발생 가망성을 낮추려면, 콘크리트 기초 외벽 부분을 단열재로 감싸서 콘크리트기초의 온도하락을 막아주어야 합니다. Zero30Haus는 콘크리트 기초 외벽을 100mm XPS로 단열처리를 합니다. 하지만 이정도의 단열보강만으로는 한겨울 토대목 아래 콘크리트 표면온도가 이슬점까지 떨어지는것을 완전히 막는 것이 어렵습니다.

그래서 최악의 경우 토대목이 1. 물을 흡수하지 않고, 2. 벽체 하중을 지지할 수 있고, 3. 토대목보다 열전도율이 낮은(단열성이 높은) 자재로 토대목을 대체할 궁리를 하게 되었습니다.
하지만 이 3가지 요구사항을 만족할 수 있는 자재가 쉽지 않습니다. 나무처럼 물을 먹지 않으면서 나무만큼의 압축강도를 가지고 있어 무거운 벽체가 토대위에 올라타도 찌그러지면 안되고, 그러면서 단열성은 스티로폼처럼 높은 자재여야 하는데 그런 자재가 통상적으로 없다는 것이죠.
통상적으로 나무보다 단열성이 높은 재질은 나무보다 압축강도가 낮습니다.
SPF 목재의 압축강도 약 400psi , 단열성 R1.25/inch
XPS 단열재의 압축강도 약 25psi, 단열성 R4.5~5/inch
그런데! 마침 정양SG 라는 기업에서 아래와 같은 압축강도와 단열성능을 가지는 자제를 제안주셨습니다.

정양SG HDI-150K 단열재의 압축강도 약 2680psi, 단열성 R5.34/inch
콘크리트의 압축강도가 일반적으로 2000~4000psi 이니 이 단열재는 콘크리트만큼의 하중을 지탱할 수 있으면서 단열성은 나무재질보다 4배 이상 높다는 것이죠.

그림의 초록색 부분의 토대목을 고강도 단열블럭으로 대체하여 바닥 단열재와 외벽 단열재가 토대목에서 끊겨 있던 부분을 이어줘서 단열선이 끊기지 않게 하여 파란색 으로 표시한 경로로 냉기가 전달되는 것을 차단해 줄 수 있습니다.
Zero30Haus는 집의 바닥-벽-지붕까지의 모든 6면에 단열라인이 끊기지 않게 연속적으로 연결시키는 것이 중요한 목표여서 이를 달성하기 위해서는 토대목 부분의 단열성을 확보할 솔루션이 필요했습니다.

고강도단열재를 2×6 토대목 사이즈(140x90mm)로 동일하게 제작하여 일반적인 토대목을 설계변경 없이 그대로 대체할 수 있도록 하였습니다.

찍힘에 대한 저항강도는 나무와 비슷한 것 같습니다. 압축강도는 나무보다 5배이상 높지만 나무처럼 내부에 섬유질이 없어 스크류나사의 체결강도는 나무보다 낮은 것으로 보였습니다. 스크류 체결시 토크조절이 필요해 보입니다.

단열재와 기초사이에는 씰씰러의 아래와 씰씰러의 위쪽으로 실리콘을 끊김없이 시공하여 단열재와 기초사이의 미세한 틈으로 외부 벌레가 들어올 수 있는 가망성을 완벽차단하였습니다. 벌레절대시러!!

앵커볼트와 기단부단열재 사이는 흐름성 실리콘을 내부로 부어 이런 틈새도 완벽 차단. 벌레시러 습기시러

예상못한 문제발생.
토대목대용의 단열재가 L앙카에 최소한 두군데 이상 체결되어야 하는데, 단열재 생산시 최대길이가 1m 밖에 안되어 L앙카가 단열플레이트에 2개 이상 체결되지 못하는 문제와 설치된 L앙카의 길이가 너무 짧아 더블틀레이트를 앙카로 고정시킬 수 없는 문제가 발생하였습니다.

이 문제는 이후에 Rotho blaas사의 기초용 스크류앙카와 홀드다운을 추가 설치하여 해결하기로 하였습니다. (사실상 앵커링을 새로 하는 셈)

이렇게하여 이제 목조주택을 시공하기 위한 모든 준비를 드디어 마쳤습니다.
